深水半潜钻井平台FMEA解决方案

【导读】
以深水半潜钻井平台为实例,阐述了对DP-3(中国船级社对DP动力定位船舶的附加标志之一)动力定位系统应用故障模式与影响分析(FMEA)方法进行分析的基本概念,分析方法流程,以及编制
摘要:以深水半潜钻井平台为实例,阐述了对DP-3(中国船级社对DP动力定位船舶的附加标志之一)动力定位系统应用故障模式与影响分析(FMEA)方法进行分析的基本概念,分析方法流程,以及编制FMEA分析报告和冗余度验证试验程序的基本内容。
半潜钻井平台
 
引言
深水油气能源的开发是当今能源发展的热点也是未来海洋资源的开发和探索方向。具有动力定位功能的深水作业移动平台,是深水油气开发的重要工具,而安全可靠的DP动力定位系统是此类装置的基本要求和必要保障。对DP系统的FMEA,是确保DP系统功能品质的一种可靠的分析方法,其对各种潜在的故障模式进行评价分析,以消除或减小这些风险。
 
因此FMEA在具有动力定位能力的深水半潜平台上的应用主要集中在对DP动力定位系统的故障模式与影响分析。基于钻井平台环境中常常含有碳氢化合物,DP动力定位钻井平台通常要求动力定位系统的冗余度最低为DP-2。本文以目前动力定位系统冗余度要求最高的DP-3深水半潜钻井平台为实例,介绍了FMEA的基本概念,分析方法流程,以及编制FMEA分析报告和冗余度验证试验程序的基本内容。


1 故障模式与影响分析(FMEA)
1.1 基本概念
 
FMEA(Failure Modes and Effects Analysis)是一种可靠的分析方法。目的在于通过认可及评价潜在失效以及该失效的后果,从而确定消除或减少潜在失效发生机会的措施。目前在船舶行业中,FMEA应用于各种重要系统的设计分析,如推进冗余系统、推进遥控系统和高速船舶的主要系统等,尤其应用于动力定位系统,且DP动力定位船舶在码头试验,调试和CAT(客户验收试验)后都必须进行FMEA冗余度验证试验…。


1.2 DPS动力定位系统
DPS(Dynamic Positioning System)动力定位系统是指使动力定位船舶实现动力定位所必需的一整套系统,含动力系统、推力器系统、动力定位控制系统和测量系统瞳1。典型动力定位系统的组成如图l所示。
典型的DPS组成  
图1 典型的DPS组成 

1.3 DP-3
根据动力定位系统的不同冗余度,经船东申请,船级社对符合要求的DP动力定位船舶授予附加标志,例如:
DP-3是指安装有动力定位系统的船舶,在出现任何单个故障(包括由于失火或进水造成一个舱室的完全损失)后,可在规定的最大环境条件下,在规定的工作范围内自动保持船舶的位置和艏向。


1.4 DP动力定位系统的FMEA
DP动力定位系统的FMEA是对整个DP系统进行故障模式与影响分析。FMEA的目的在于说明与 动力定位系统功能有关设备的不同故障模式。对于系统中的某一设备可能有多种故障模式,从而对动力定位系统产生多种不同影响,在分析时应特别注意。对整个动力定位系统应进行故障模式与影响分析,包括所有系统的主要部件,一般应包括但不局限于下列内容: 

1)所有系统主要部件的描述以及表示他们相互之间作用的功能框图;
2)所有严重故障模式;
3)每一故障模式的主要可预测原因;
4)每一故障对船位的瞬态影响;
5)探测故障的方法;
6)故障对系统剩余能力的影响;
7)对可能的公共故障模式的分析。


2 FMEA分析方法
2.1 FMEA分析方法流程

在DP-3深水半潜平台上,使用FMEA方法对动力定位系统进行故障模式与影响分析的流程见图2。
故障模式与影响分析流程  
图2 故障模式与影响分析流程 

FMEA的分析过程与结论以其分析文档为体现形式,这些文档主要是指FMEA分析报告和FMEA冗余度验证试验程序。FMEA分析报告与试验程序应提交船级社审查。 
 

2.2 FMEA分析报告
FMEA应涵盖整个DP系统,并覆盖所有系统的主要部件。在编制FMEA报告时,因系统中的某一设备可能有多种故障模式,将对动力定位系统产生多种不同影响,所以应对每一单个故障模式对系统内其他部分的影响以及对整个DP系统的影响进行说明。FMEA通常以一个专用的工作表进行分析和记录如表l所示。 
 
 
在半潜式钻井平台上应用FMEA验证动力定位系统及其辅助系统的设计是否满足DP-3要求,是通过对动力系统、推进器系统、电力分配系统、DP控制系统、DP参照系统以及DP相关的其他辅助系统(压缩空气系统、燃油系统、滑油系统、冷却系统、安全系统、应急关断系统、火气系统等)进行故障模式和影响的分析,来评价系统的安全可靠性。
为满足DP-3附加标志要求,动力定位系统在平台上的布置如表2所示。 
 
 
FMEA考查动力定位系统是否满足DP-3要求,主要考虑以下几种单个失效故障模式:
1)与DP相关的单设备或单个子系统失效(例如:推进器系统、DP控制系统、电力分配系统、辅助系统等):

2)单舱失效故障(因浸水或失火导致安装在此舱室内的设备、子系统故障失效)。DP-3深水半潜平台DP系统FMEA分析报告基本内容如下:

1)动力发电系统。分析主发电机单机的控制及辅助系统的配置冗余度是否满足DP-3的操作要求,在考虑单故障的条件下不能引起其他主机的故障,这里涉及电源的冗余配置及元器件或设备的冗余是否满足DP-3要求。注意还应包含发电机生产厂家对设备及其内部做的FMEA。

2)配电系统。分析ll kV士配电板,480V配电板,230V配电板和480V和230V应急配电板失效故障情况,以及发生故障后替代系统或设备冗余度是古满足DP-3要求。同时应注意各Ⅸ域配电板,DP控制系统的电力分配。注意配电系统的FMEA还应包含配电板生产厂家对设备及其内部做的FMEA。

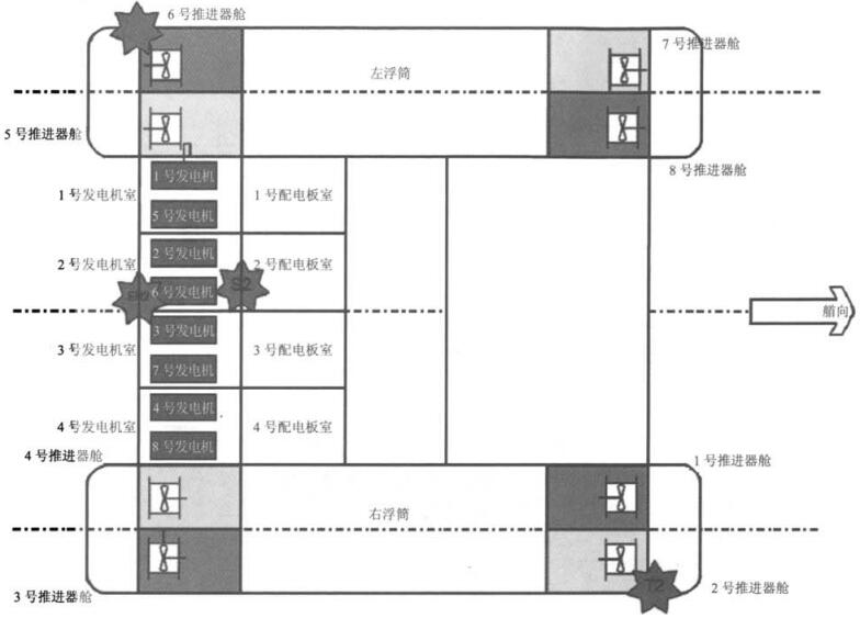
3)推进器系统。分析因推进器失控而导致平台失去原本位置的可能性。注意包含推进器生产厂家对设各的FMEA。为满足DP-3要求,平台上动力系统电力分配系统和推进器系统装置的布置如图3所示。
平台动力配电和推进装置布置 
图3 平台动力配电和推进装置布置 
 
上述3个部分的FMEA分析报告中的故障模式还应重点考虑失火或进水造成一个舱室完全损失的失效故障模式。

4)辅助机械系统。分析包括为DP相关设备服务的平台空气系统(包括压缩窀气系统、仪表空气系统和杂用空气系统等)、推进器管路系统、起动空气系统、燃油系统(包括燃油输送系统、燃油泄放系统、燃油净化系统和燃油注入系统等)、滑油系统(包括滑油输送与泄放系统)、冷却系统(包括主机冷却系统、中央冷却系统和推进器冷却系统等)以及空调冷藏通风系统等。

5)动力定位控制系统。分析DP控制系统网络的冗余度和包括动力定位参照系统在内的所有DP控制系统设各的冗余情况是否满足DP-3要求。为满足要求平台设训了l套主DP和l套备用DP系统组成DP控制系统。注意应包含DP控制系统设备生产厂家的FMEA。

6)舱室物理分隔和布置。分析评价推进器舱、主发电机舱、配电板室、控制室和其他与DP相关的舱室物理分隔是否满足DP-3的要求(如图3中动力配电和推进装置舱室的分隔)。上述舱室在平台上采用A60物理分隔来达到要求。


2.3 FMEA冗余度验证试验程序
DP-3深水半潜平台DP系统的FMEA冗余度验证试验按如下系统和操作模式来验证可能潜在失效故障模式:
1)动力发电系统。考虑操作工况在DP模式下,1lkV主配电板分两段运行,每段至少2台主机运行,8台推进器同时在线。
(1)当分两段运行时,考虑失去1台主机不会导致全船黑起动;
(2)单台主机自动调压器失效故障,不会引起1台以上主机脱扣跳闸;
(3)还应考虑主机调速器失效、主机调速器控制单元失效等,DP不失位。

对于主发电机组来说,故障模式主要参考了主机设备生产厂家对设备的FMEA验证程序。

2)配电系统。考虑配电板的故障模式主要是母排短路、母排断路器故障、配电板室失火或淹舱、UPS(不间断电源)故障等,当发生故障后对电力平衡分配,负载转移等的影响是否会导致DP失位。
 
按如下几个部分进行验证试验:
(1)分别对1lkV主配电板,480V配电板,230V配电板和480V和230V应急配电板的每一段进行失效故障模拟测试,考查设备及系统的冗余度是否满足DP-3要求;
(2)分别验证每段中压配电板的辅助电源如UPS(4个),每个推进器的UPS(8个),主机控制板的UPS(4个),主DP系统UPS和备用DP系统UPS的设备冗余度;
(3)验证PMS电站管理系统中单个就地操作站失效故障,不能引起全船黑启动,在分4段运行模式和2段运行模式下模拟此类失效故障。

3)推进器系统。验证推进器调速装置由于失电或失去控制信号等原因失效故障,不会导致DP失位。主要参照推进器生产厂家对设备的FMEA。

4)辅助机械系统。主要通过隔离来自杂用空气和起动空气系统的空气供应,并释放控制空气管线压力来模拟仪表控制空气供应失效故障,验证其不会对DP造成影响导致失位;另外验证1台主机海水冷却系统或淡水冷却系统失效故障,不会导致DP失位。

5)动力定位DP控制系统。验证DP控制系统的冗余度,主要通过切断相关设备的供电,模拟设备失效故障。主要参考DP控制系统设备生产厂家的FMEA。分别对如下设备或系统进行验证:

(1)DP控制器的冗余度测试,包括对主控制器、备用控制器、DP控制按钮、报警指示灯、DP控制台等设备进行失效故障验证试验:
(2)控制网络的冗余度测试,包括对NDU(网络分配单元),FS(就地光纤柜)等设备失效故障验证试验;
(3)验证ESD(应急关断)系统控制柜和F&G(火气)系统控制柜单失效,不会导致DP失位;
(4)验证DP参照系统设备的冗余度,包括DGPS(差分全球定位系统)、HiPAP(声纳)测深系统、Gyro(电罗经)系统、MRU(运动参照单元)、风速风向仪系统等设备的失效故障测试。

6)舱室物理分隔和布置。分别验证单舱故障失效,包括推进器舱、主发电机舱、配电板室、泵舱、控制室和其他与DP相关的舱室单舱失效时,不会导致DP失位(即自动保持平台的位置和艏向)。上述各舱室间采用A60级防火材料进行物理分隔以避免火势蔓延到相邻的舱室。

 
2.4 FMEA分析的注意事项
1)与DP有关的系统众多,范围广泛,几乎遍布整个平台。所以在做故障模式与影响分析时,首先应定义分析范围即分析对象,对与DP相关系统有明确的定义;
2)确定FMEA的故障模式是重点,要尽量考虑全面;
3)验证试验方法应切实可行,简单易于操作,尽量验证全部FMEA中的故障模式;
4)因验证试验贯穿系泊试验与海上试验阶段,需要统筹规划:
5)FMEA试验是模拟故障模型,所以试验前要考虑详尽,否则有引发事故的可能。应先完成设备或系统的功能性试验之后,再进行FMEA的验证试验。


3 结语
在DP-3深水半潜平台上运用FMEA方法对DP系统进行故障模式与影响分析,验证了DP系统的稳定性,安全性,并有助及时发现潜在失效故障危险,有效评价了DP系统设计是否满足IMO(国际防止船舶污染公约)、船级社等对DP-3系统的要求,确保为平台提供安全稳定有效可靠的DP系统,提高平台操作人员的安全系数,使平台在海上生产能安全有效地运行。 
 
 
 
 
 

  • 2019-09-11 17:40
  • 我要分享:
声明:文章"深水半潜钻井平台FMEA解决方案"为上海御云信息科技有限公司原创文章,转载请注明出处,谢谢合作!您所在位置:FMEA系统 > 质量管理系统资讯 > FMEA资讯 >

联系清泰代表

热门文章
热门标签